2024

Tapalqué

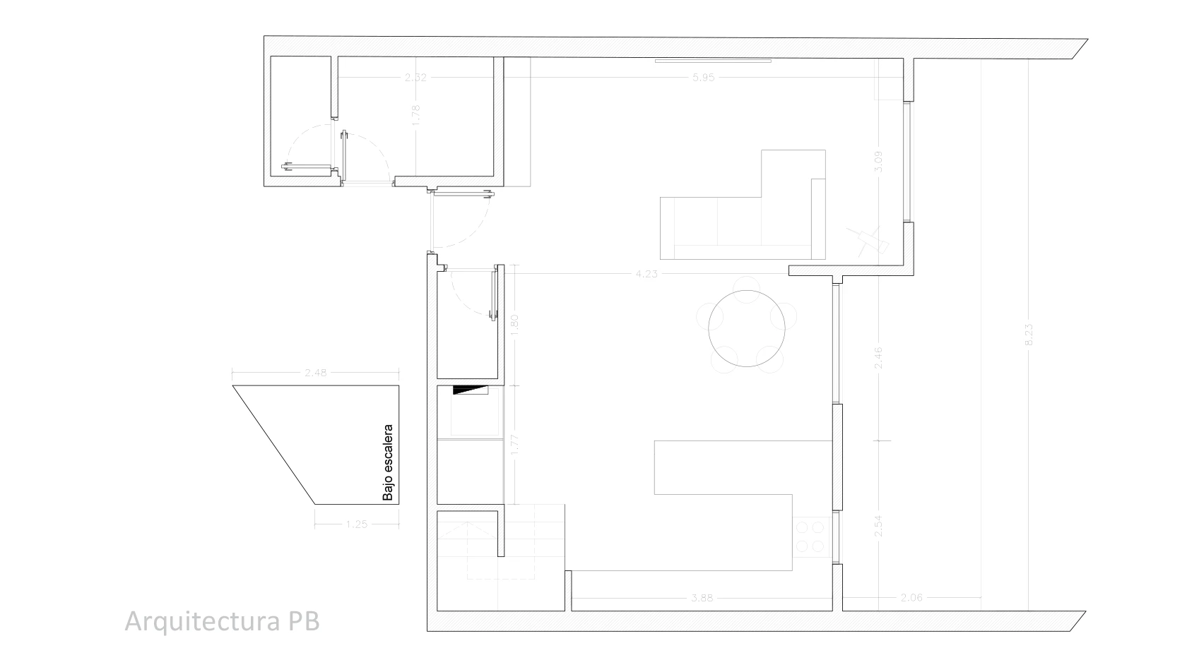
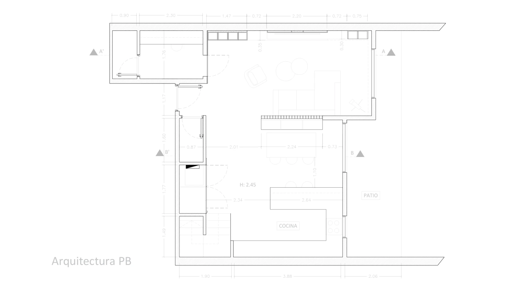
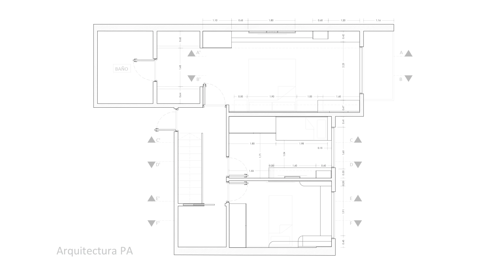
Vivienda unifamiliar
100 m2
Parque Avellaneda, CABA, Argentina.

Nuestros clientes adquirieron hace tiempo un departamento con la idea de convertirlo en su vivienda ideal para toda su familia.
Así fue como contrataron la Asesoría de Diseño de Fika para terminar de cerrar la espacialidad y diseñar los distintos muebles para cada ambiente. Se intervino en planta baja el comedor, living y estudio y en planta alta las tres habitaciones.
Se abordó el diseño buscando un estilo moderno, de colores crudos y madera, para no sobrecargar el espacio y aprovechar lo máximo posible la luz natural.

Detalles de diseño:
• Puerta invisible push de conexión entre estudio y living
• Divisor tipo banco-varillado para separar ambientes
• Placas para colocar TV con pasacables ocultos
• Instalación de tiras LED

WhatsApp
+54 11 6047-1168