2025

Riglos

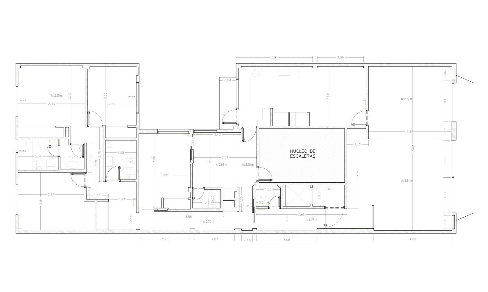
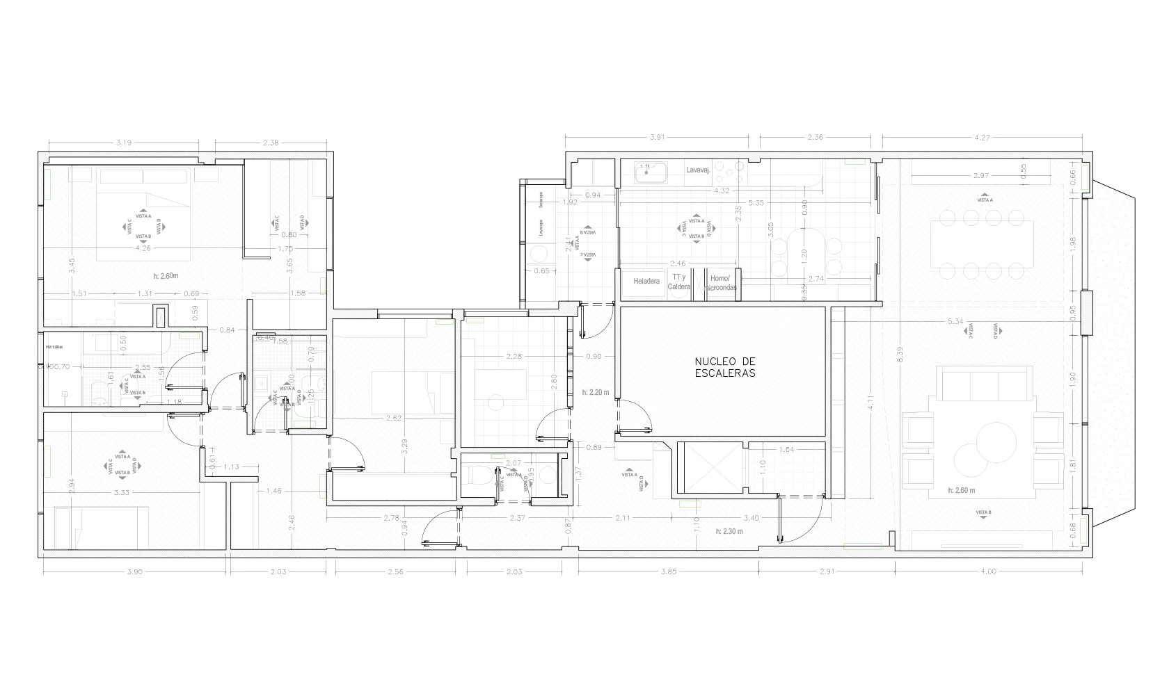
Vivienda unifamiliar
Proyecto de Reforma Integral
170 m2
Caballito, CABA, Argentina.

• Renovación completa de revestimientos, instalaciones y carpinterías.
• Integración de la cocina al living/comedor para lograr un ambiente amplio y funcional.
• Creación de un escritorio privado, ideal para recibir clientes y trabajar cómodamente desde casa.
• Ampliación del dormitorio principal, ahora con baño y vestidor en suite, rearmando dos dormitorios secundarios con un diseño optimizado.
• Diseño/ampliación de lavadero, que también funciona como espacio de planchado.
• Reconfiguración de los baños, ampliando uno para generar un toilette de visitas más cómodo y eliminando otro para nuevo sector recibidor/guardarropa.
• Detalles de interiorismo que hacen la diferencia: Cada ambiente fue pensado con un enfoque integral que incluye diseño funcional, estética contemporánea y soluciones personalizadas para el día a día.

En nuestro proceso de Diseño incorporamos el servicio de modelado 3D y renderizado, donde acompañamos cada paso del mismo, generando los renders de cada etapa, para que los clientes puedan entender los distintos diseños de manera clara y precisa y así poder definir de la mejor manera su proyecto.

WhatsApp
+54 11 6047-1168