2022/2023

PH Mansilla

Vivienda unifamiliar
Proyecto de Reforma Integral
90 m2
Palermo, CABA, Argentina.

El desafío principal fue unificar espacios, para conseguir este concepto abierto y moderno que se pretendía, y generar que la circulación entre ambientes sea cubierta.

Se aprovecho parte de la superficie del patio, para generar una pequeña circulación/hall de entrada, con una gran carpintería de vidrio repartido para mantener el ingreso de luz natural, logrando limites claros y un equilibrio entre el interior y el exterior.

De esta forma no solo creamos un claro acceso, sino que al ampliarnos nos permitió también, zonificar el baño original en dos: baño en suite y toillet para servir a la parte social.

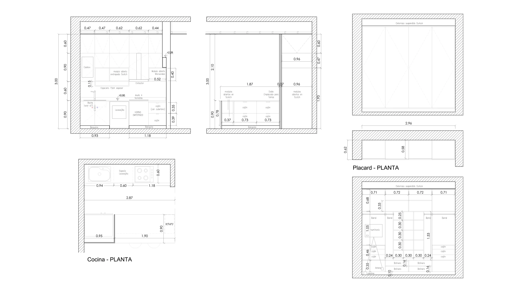
Por otro lado, se ubico la cocina (abierta al living/comedor) pegada a los baños, generando un núcleo húmedo reducido al centro de la casa.

Se recuperaron puertas, ventanas, pisos (pinotea) y bovedillas, para mantener el estilo antiguo de ph. Resultado: Un PH moderno y compacto, con amplios espacios bien distribuidos y servidos, remodelado a nuevo pero manteniendo su esencia.

WhatsApp
+54 11 6047-1168