2024

Muñiz

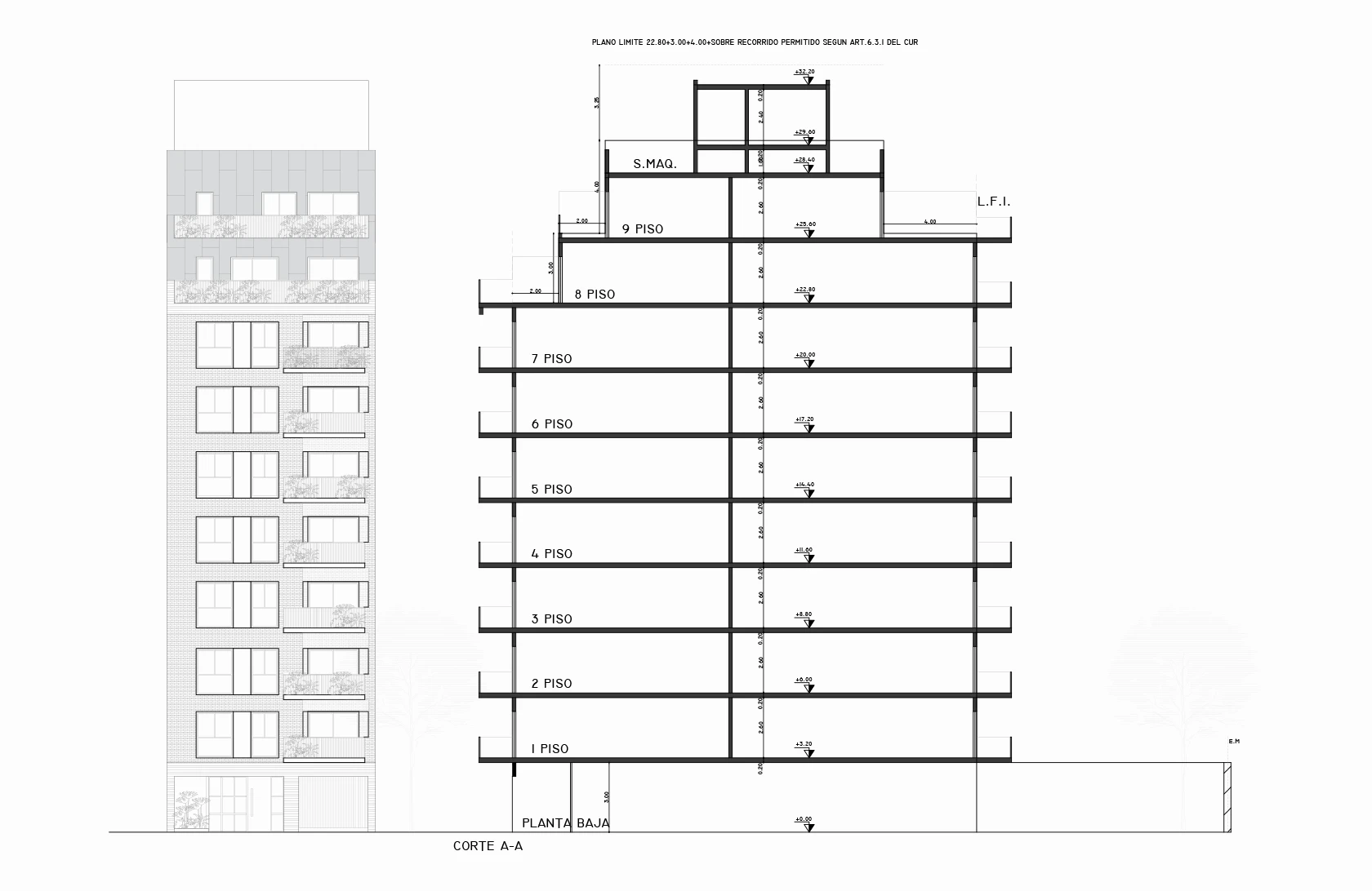
Edificio de viviendas multifamiliar
2400 m2
Boedo, CABA, Argentina.

El cliente nos confió el diseño arquitectónico, la documentación y la gestión del proceso de aprobación municipal para este proyecto de vivienda multifamiliar.

El objetivo final era vender el terreno junto con el proyecto aprobado.

Este proyecto vertical se posiciona en un barrio con vecinos de pequeña escala. Su diseño juega con ladrillos en su fachada y combina con elementos de hormigón y chapa/hierro negro, haciendo enfoque en la integración de la naturaleza a través de la inclusión de numerosas plantas y espacios verdes en su diseño.

WhatsApp
+54 11 6047-1168