2024

Casa de Campo

Vivienda unifamiliar
180 m2
Tomas Jofré, Provincia de Buenos Aires, Argentina.

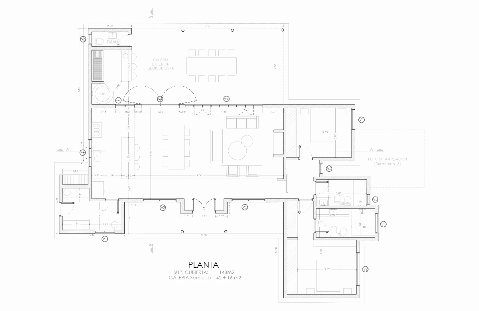
Este proyecto fue desarrollado en un lote de una hectárea y media, sin construcciones previas. Los clientes buscaban una vivienda de fin de semana con estilo de casa de campo, un refugio para descansar y disfrutar de la naturaleza lejos del ritmo urbano.

El programa arquitectónico incluyó:
•⁠ ⁠Un gran espacio social con cocina, comedor y living integrados.
•⁠ ⁠Una amplia galería orientada al jardín para conectar con el entorno verde.
•⁠ ⁠Dos habitaciones con baño compartido.
•⁠ ⁠Una suite principal con vestidor y baño privado.

La propuesta priorizó los espacios comunes, pensados para recibir visitas y disfrutar de reuniones relajadas en un entorno natural.

Se optó por una estetica de casa de campo donde en el exterior se diseñó un basamento y un remate frontal, completando la composición con molduras típicas de este estilo tradicional e incorporando elementos caracteristicos como la gran ventana de vidrio repartido en hierro, las columnas de hierro y techo de chapa en la galería, y un recibidor destacado en el acceso principal.

WhatsApp
+54 11 6047-1168